Ferme - à vendre - 4300 Waremme 600 000 €

Ferme - à vendre - 4300 Waremme
4 2 305 m² 1 10 PEB : C

Description

Visitez ce bien lors de notre journée portes ouvertes du 9 mai prochain ! Plus d’infos en agence.
L'Immobilière de MARNEFFE vous proposer cette exceptionnelle ferme disposée sur 4.400m² de terrain à Waremme. Construite en 1850, cette bâtisse rénovée avec goût surprend par ses volumes, son architecture et son caractère unique.
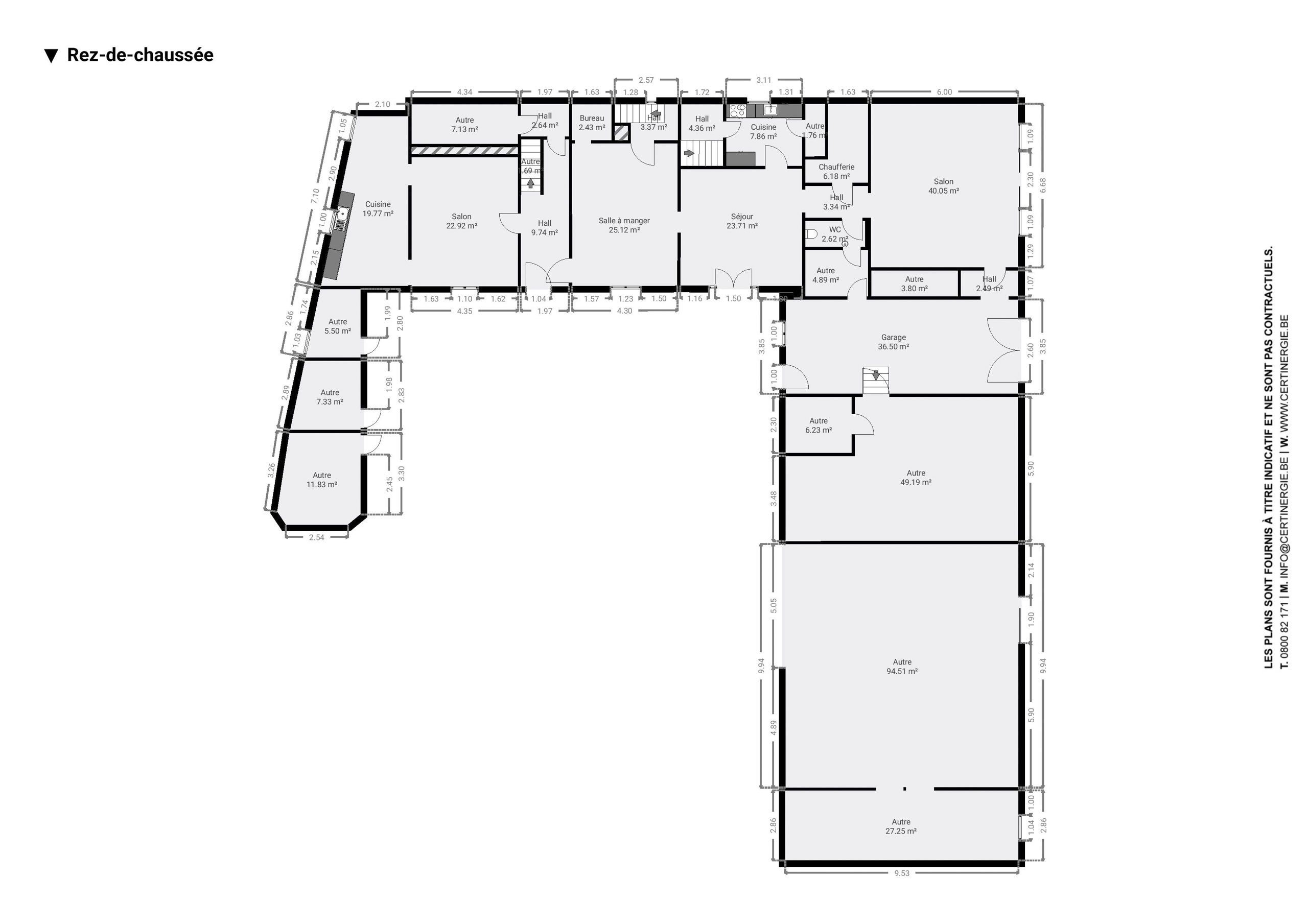
Accessible via un porche, la propriété s’organise autour d’une magnifique cour en carré pleine de charme. Le bien comprend 305m², complétés par 215m² de granges, offrant un potentiel remarquable. Grâce à ses 2 entrées séparées, cette habitation offre de multiples poss.: maison unifamiliale, kangourou ou partie PRO.
1ère partie se compose d’une salle à manger, cuisine, séjour ouvert sur le jardin, 2 ch, dressing et SDB.
2eme partie comprend une cuisine avec salle à manger, séjour, 2 ch, dressing/bureau et SDD.
Extérieurs +++: vous serez séduit par un superbe jardin, des terrasses ensoleillées et une vaste prairie de 2.700m², un véritable havre de paix.
Équipements +++ : châssis PVC et bois DV, CC mazout, poêle à pellets, 2 K7 à bois, panneaux photo (9.700 kWh), égouts… Coup de cœur assuré! PEB : C – 253 kWh/m².an 20260415022694
Les éléments communiqués sont fournis avec le plus grand soin, sans toutefois présenter de caractère contractuel. La présente annonce ne constitue en aucun cas une offre au sens juridique du terme, mais vaut appel d’offres d’achat. https://www.immodemarneffe.be/fr/bien/a-vendre/maison/4300-waremme/7672270

Adresse :

Rue de la limite 7 - 4300 Waremme

Documents

Général

Référence 7672270
Catégorie Ferme
Meublé Non
Nombre de chambres 4
Nombre de salles de bain 2
Jardin Oui
Surface du jardin 3200 m²
Garage Oui
Terrasse Oui
Parking Oui
Surface habitable 305 m²
Surface du terrain 4409 m²
Disponibilité à l'acte

Bâtiment

Année de construction 1850
Nombre de garage 1
Parking intérieur Oui
Parking extérieur Oui
Parking(s) extérieur (nombre) 10
Type de construction traditionnel

Nom, catégorie & situation

Nombre d'étages 1

Equipement de base

Accès handicapés Non
Cuisine Oui
Chauffage (type) mazout (chauf. centr.)
Type de cuisine équipée

Spécificités terrain

Orientation du bâtiment (façade arrière) nord-ouest
Prairie Oui
Type d'environnement central
Prairie (surface) 3200 m²
Exposition de la façade avant sud-est
Orientation du jardin nord ouest
Risque d'inondation 2023 (type innondation) Classe A (aucune chance)

En chiffres

Surface bâtie (surf. bât. princ.) 634
Nbre de cave(s) (nombre) 2
Nbre de toilette(s) (nombre) 3
Chambre 1 (surface) 15 m²
Chambre 2 (surface) 17 m²
Chambre 3 (surface) 14 m²
Chambre 4 (surface) 15 m²
Largeur de façade 27
Garage (surface) 37 m²
Nbre de terrasse(s) (nombre) 2
Orientation de la terrasse 2 ouest
Salle de séjour (surface) 23 m²
Salle à manger (surface) 25 m²
Cuisine (surface) 20 m²
Buanderie (surface) 6 m²
Dressing (surface) 10 m²
Salle de bain 1 (surface) 13 m²
Caves (surface) 52 m²
Sdd (surface (sdd1)) 11 m²
Possibilité profession libérale (surface) 103 m²
Bureau (surface) 11 m²
Hall d'entrée (surface) 10 m²
Atelier (surface) 172 m²
Orientation de la terrasse 1 nord-ouest
Hall de nuit (surface) 13 m²

Divers

Buanderie Oui
Lave-vaisselle Oui
Débarras Oui
Téléphone Oui
Coin à déjeuner Oui
Cave Oui
Télévision Oui
Frigo Oui
Four Oui
Hotte Oui
Feu ouvert Oui

Equipement extérieur

Atelier Oui
Boxes à chevaux Oui
Piscine Non
Cour Oui
Clôture Oui
Atelier (surface) 172 m²

À proximité

Magasins (distance (m)) 2000
Écoles (distance (m)) 1000
Transports en commun (distance (m)) 100
Centre-ville (distance (m)) 2000
Centre sportif (distance (m)) 2000
Magasins Oui
Ecoles Oui
Transports en commun Oui
Centre-ville Oui
Centre sportif Oui
Autoroute Oui
Autoroute (distance (m)) 300
Gare Oui
Gare (distance (m)) 2000
Crèche Oui
Crèche (distance) 2000

Charges & Rendement

Sous régime TVA Non
Loué Non

Raccordements

Égouts Oui
Électricité Oui
Citerne à mazout Oui
Eau Oui

Équipements techniques

Châssis (type) bois ou pvc
Panneaux solaires Oui
Vitrage (type) double vitrage

Domaine juridique

Permis de bâtir Non
Permis de lotir Non
Affectation urbanistique zone agricole

Caractéristiques Principales

Surface de terrasse 1 60 m²

Cadastre

Revenu cadastral (€) (montant) 955 €

Certificats / Attestations

Certificat d'électricité (oui/non) oui, non conforme

Certificats énergétiques

Label PEB (classe) C
PEB E-SPEC (kwh/m²/an) 253
Emission CO2 (émission CO2) 49
E total (Kwh/an) 103162
PEB code unique 20260415022694
PEB Min (kWh/m²/an) 253 kWh/m²/an
PEB Max (kWh/m²/an) 253 kWh/m²/an
PEB valide jusqu'au (datetime) 15/04/2036
Date du PEB (datetime) 15/04/2026
Prendre contact pour le bien : 7672270

* Champs obligatoires

Préférences pour les cookies

La protection de vos données personnelles est importante pour nous. C’est pourquoi nous détaillons ci-dessous les différents services et fonctionnalités du site qui utilisent des cookies et nous vous laissons décider des cookies que vous souhaitez autoriser ou refuser.

Veuillez cependant noter que si vous bloquez certains types de cookies, cela pourrait impacter votre expérience de navigation sur notre site ainsi que les fonctionnalités disponibles.

Nous utilisons des cookies fonctionnels obligatoires pour assurer le bon fonctionnement du site. Ils sont, par exemple, nécessaires pour retrouver le résultat d’une recherche ou enregistrer le choix de la langue.

Certaines fonctionnalités, comme l’affichage de vidéos ou de cartes géographiques, sont assurées via des composants externes développés par des partenaires comme YouTube ou Google. Certains composants utilisent des cookies qui sont susceptibles de permettre à ces tiers de suivre le comportement des internautes afin, par exemple, de réaliser du ciblage publicitaire. L’activation de ces fonctionnalités et des cookies associés est donc soumis à votre consentement.