Immeuble mixte - à vendre - 4300 Waremme 270 000 €

Immeuble mixte - à vendre - 4300 Waremme
3 2 198 m² PEB : F

Description

L’Immobilière de MARNEFFE vous propose cet immeuble mixte, idéalement situé en plein centre de Waremme; comprenant un duplex sur le 1er et 2ème étage, ainsi que des bureaux au rez-de-chaussée.
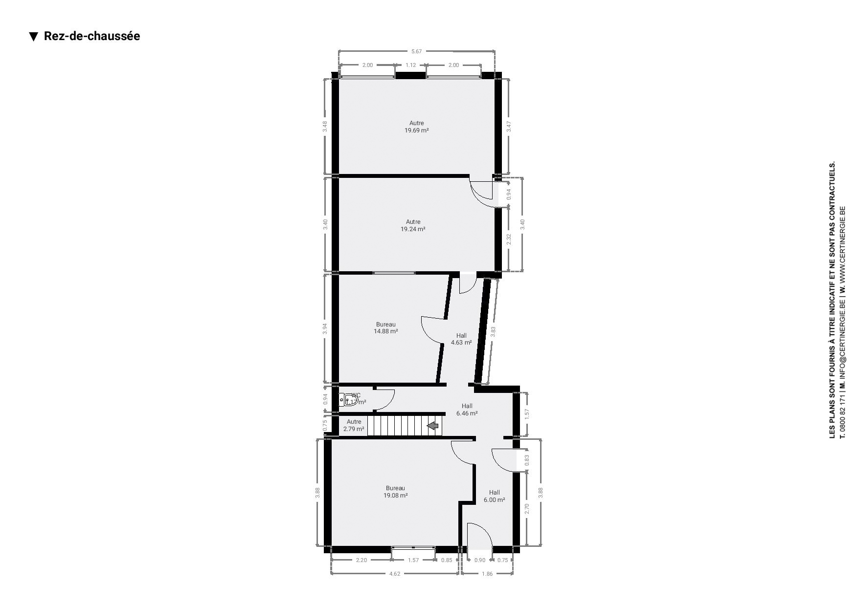
Au REZ: hall d'entrée avec WC indépendant et 4 bureaux de 19, 15, 19 et 20m²
Au 1ere étage : duplex de 2 chambres composé comme suit au 1er étage : hall d’entrée avec WC, cuisine équipée avec coin déjeuner de 25 m² et salon de 19 m². Au 2ᵉ étage : hall de nuit, 2 grandes chambres de 16 et 19m² et salle de bain (WC, évier, bain et emplacement pour machine à laver et séchoir).
Équipements : châssis PVC DV avec volet au RDC, chauffage central mazout 2005, boiler électrique, égouts…
Atouts : Situation parfaite à 2 pas du centre de Waremme et à 2 minutes de la E40.– possibilité d’un revenu locatif de 1500€/mois. Une belle opportunité à découvrir sans tarder ! PEB F 484Kwh/m².an n°20250623005731. A Plus d'infos et plans au 019/770.500 ou via https://www.immodemarneffe.be/fr/bien/a-vendre/maison/4300-waremme/7631925

Adresse :

Avenue Edmond Leburton 5 - 4300 Waremme

Documents

Général

Référence 7631925
Catégorie Immeuble mixte
Meublé Non
Nombre de chambres 3
Nombre de salles de bain 1
Garage Non
Terrasse Non
Parking Non
Surface habitable 198 m²
Surface du terrain 119 m²
Disponibilité à l'acte

Bâtiment

Année de construction 1850
Parking extérieur Non
Année de rénovation 2000

Nom, catégorie & situation

Nombre d'étages 2

Equipement de base

Accès handicapés Non
Cuisine Oui
Chauffage (type) mazout (chauf. centr.)
Type de cuisine séparée

Spécificités terrain

Orientation du bâtiment (façade arrière) nord-est
Type d'environnement central
Exposition de la façade avant sud-ouest
Risque d'inondation 2023 (type innondation) Classe A (aucune chance)

En chiffres

Surface bâtie (surf. bât. princ.) 207
Nbre de toilette(s) (nombre) 3
Nombre de sdd 1
Chambre 1 (surface) 20 m²
Chambre 2 (surface) 19 m²
Chambre 3 (surface) 17 m²
Bureau (surface) 91 m²

Sécurité

Volets Oui

À proximité

Magasins (distance (m)) 20
Écoles (distance (m)) 170
Transports en commun (distance (m)) 450
Centre sportif (distance (m)) 900
Magasins Oui
Ecoles Oui
Transports en commun Oui
Centre sportif Oui
Autoroute Oui
Autoroute (distance (m)) 2500
Gare Oui
Gare (distance (m)) 1000

Equipement extérieur

Piscine Non

Charges & Rendement

Sous régime TVA Non
Loué Non

Domaine juridique

Servitude Non
Permis de bâtir Oui
Permis de lotir Non
Affectation urbanistique zone d'habitat

Raccordements

Égouts Oui
Électricité Oui
Eau Oui

Équipements techniques

Châssis (type) pvc

Cadastre

Revenu cadastral (€) (montant) 1601 €

Certificats / Attestations

Certificat d'électricité (oui/non) oui, non conforme

Divers

Cave Oui

Certificats énergétiques

Label PEB (classe) F
PEB E-SPEC (kwh/m²/an) 484
Emission CO2 (émission CO2) 120
E total (Kwh/an) 125005
PEB code unique 20250623005731
PEB valide jusqu'au (datetime) 23/06/2035
Date du PEB (datetime) 23/06/2025
Prendre contact pour le bien : 7631925

* Champs obligatoires

Préférences pour les cookies

La protection de vos données personnelles est importante pour nous. C’est pourquoi nous détaillons ci-dessous les différents services et fonctionnalités du site qui utilisent des cookies et nous vous laissons décider des cookies que vous souhaitez autoriser ou refuser.

Veuillez cependant noter que si vous bloquez certains types de cookies, cela pourrait impacter votre expérience de navigation sur notre site ainsi que les fonctionnalités disponibles.

Nous utilisons des cookies fonctionnels obligatoires pour assurer le bon fonctionnement du site. Ils sont, par exemple, nécessaires pour retrouver le résultat d’une recherche ou enregistrer le choix de la langue.

Certaines fonctionnalités, comme l’affichage de vidéos ou de cartes géographiques, sont assurées via des composants externes développés par des partenaires comme YouTube ou Google. Certains composants utilisent des cookies qui sont susceptibles de permettre à ces tiers de suivre le comportement des internautes afin, par exemple, de réaliser du ciblage publicitaire. L’activation de ces fonctionnalités et des cookies associés est donc soumis à votre consentement.