Bel-étage - à vendre - 4300 Waremme 270 000 €

Bel-étage - à vendre - 4300 Waremme
3 1 125 m² 1 PEB : D

Description

L'immobilière de MARNEFFE vous propose ce superbe appartement 3 chambres, style LOFT, de 125m² situé au 1er étage d'une petite copropriété sans charges datant du début des années 2000. Idéalement situé à Bovenistier, à 2 min de Waremme et de toutes commodités, tout en étant dans un environnement calme et campagnard.
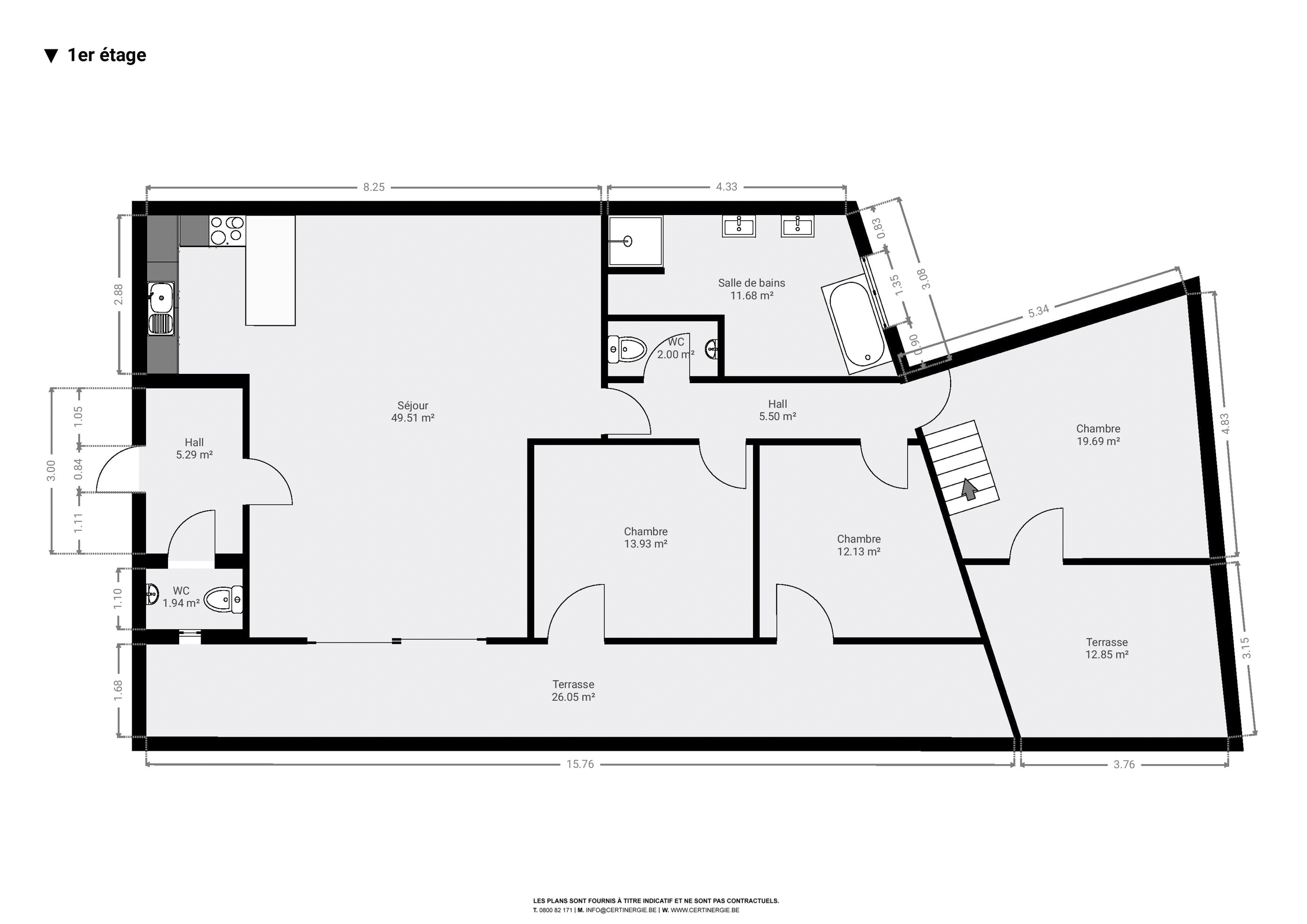
Il se compose comme suit : hall avec WC et coin vestiaire, spacieuse et lumineuse pièce de vie de 50m² avec cuisine récente (taque, hotte, four, LV, frigo, congel) et donnant sur la terrasse de 26m², 2 chambres de respectivement 12, 14m² et 3ème chambre de 20m² avec accès à une seconde terrasse de 13m², WC individuel, salle de bain. En plus de l’appartement, un spacieux garage de 25m² fait partie de la vente.
Équipements : chauffage (sol + radiateur) mazout avec chaudière et citerne de 2000L privatives, châssis PVC DV, rapport elec conforme de 2005 (plans et schéma manquants), égout, parlophone, …
Atouts : appartement en excellent état, agréable, très bien équipé et idéalement situé, vous n'aurez plus qu'à y poser vos valises ! PEB D 262kwh/m².an n°2026021202401. Les éléments communiqués sont fournis avec le plus grand soin, sans toutefois présenter de caractère contractuel. Plus d'infos au 019 770 500 ou via https://www.immodemarneffe.be/fr/bien/a-vendre/appartement/4300-waremme/7584523

Adresse :

Rue Toussaint Pypops 101 Boîte B - 4300 Waremme

Documents

Général

Référence 7606941
Catégorie Bel-étage
Meublé Non
Nombre de chambres 3
Nombre de salles de bain 1
Garage Oui
Terrasse Oui
Parking Non
Surface habitable 125 m²
Disponibilité à l'acte

Bâtiment

Année de construction 2005
Nombre de garage 1
Parking intérieur Non
Parking extérieur Non

Equipement de base

Accès handicapés Non
Cuisine Oui
Chauffage (type) mazout (chauf. centr.)
Type de cuisine équipée

Spécificités terrain

Orientation du bâtiment (façade arrière) sud-ouest
Type d'environnement calme
Exposition de la façade avant nord-est
Risque d'inondation 2023 (type innondation) Classe A (aucune chance)

En chiffres

Nbre de toilette(s) (nombre) 2
Chambre 1 (surface) 23 m²
Chambre 2 (surface) 14 m²
Chambre 3 (surface) 12 m²
Garage (surface) 25 m²
Nbre de terrasse(s) (nombre) 2
Orientation de la terrasse 2 nord-est
Salle de séjour (surface) 50 m²
Salle de bain 1 (surface) 12 m²
Hall d'entrée (surface) 5 m²
Orientation de la terrasse 1 nord-est
Hall de nuit (surface) 5.5 m²

Divers

Lave-vaisselle Oui
Téléphone Oui
Coin à déjeuner Oui
Télévision Oui
Frigo Oui
Four Oui
Hotte Oui

À proximité

Magasins (distance (m)) 3000
Écoles (distance (m)) 400
Transports en commun (distance (m)) 500
Centre-ville (distance (m)) 3000
Centre sportif (distance (m)) 3000
Magasins Oui
Ecoles Oui
Transports en commun Oui
Centre-ville Oui
Centre sportif Oui
Autoroute Oui
Autoroute (distance (m)) 5000
Gare Oui
Gare (distance (m)) 1800
Crèche Oui
Crèche (distance) 4000

Equipement extérieur

Piscine Non

Charges & Rendement

Sous régime TVA Non
Loué Non

Domaine juridique

Servitude Non
Permis de bâtir Non
Permis de lotir Non
Affectation urbanistique zone d'habitat rurale

Raccordements

Égouts Oui
Électricité Oui
Citerne à mazout Oui
Eau Oui

Équipements techniques

Châssis (type) pvc
Vitrage (type) double vitrage

Caractéristiques Principales

Surface de terrasse 1 39 m²

Cadastre

Revenu cadastral (€) (montant) 763 €

Certificats énergétiques

Label PEB (classe) D
PEB E-SPEC (kwh/m²/an) 262
Emission CO2 (émission CO2) 65
E total (Kwh/an) 36608
PEB code unique 20260212024011
PEB Min (kWh/m²/an) 262 kWh/m²/an
PEB Max (kWh/m²/an) 262 kWh/m²/an
PEB valide jusqu'au (datetime) 12/02/2036
Date du PEB (datetime) 12/02/2026

Certificats / Attestations

Attestat. citerne (oui/non) non
Prendre contact pour le bien : 7606941

* Champs obligatoires

Préférences pour les cookies

La protection de vos données personnelles est importante pour nous. C’est pourquoi nous détaillons ci-dessous les différents services et fonctionnalités du site qui utilisent des cookies et nous vous laissons décider des cookies que vous souhaitez autoriser ou refuser.

Veuillez cependant noter que si vous bloquez certains types de cookies, cela pourrait impacter votre expérience de navigation sur notre site ainsi que les fonctionnalités disponibles.

Nous utilisons des cookies fonctionnels obligatoires pour assurer le bon fonctionnement du site. Ils sont, par exemple, nécessaires pour retrouver le résultat d’une recherche ou enregistrer le choix de la langue.

Certaines fonctionnalités, comme l’affichage de vidéos ou de cartes géographiques, sont assurées via des composants externes développés par des partenaires comme YouTube ou Google. Certains composants utilisent des cookies qui sont susceptibles de permettre à ces tiers de suivre le comportement des internautes afin, par exemple, de réaliser du ciblage publicitaire. L’activation de ces fonctionnalités et des cookies associés est donc soumis à votre consentement.