Maison - option v. - 4300 Waremme

Maison - à vendre - 4300 Waremme
4 1 190 m² 1 1 PEB : D

Description

OPTION OPTION !!L'Immobilière de MARNEFFE a le plaisir de vous présenter cette spacieuse habitation à rénover 4 à 6 chambres. Idéalement située dans un agréable quartier du centre de Waremme, à proximité directe de la gare, commerces, écoles et de l'accès E40.
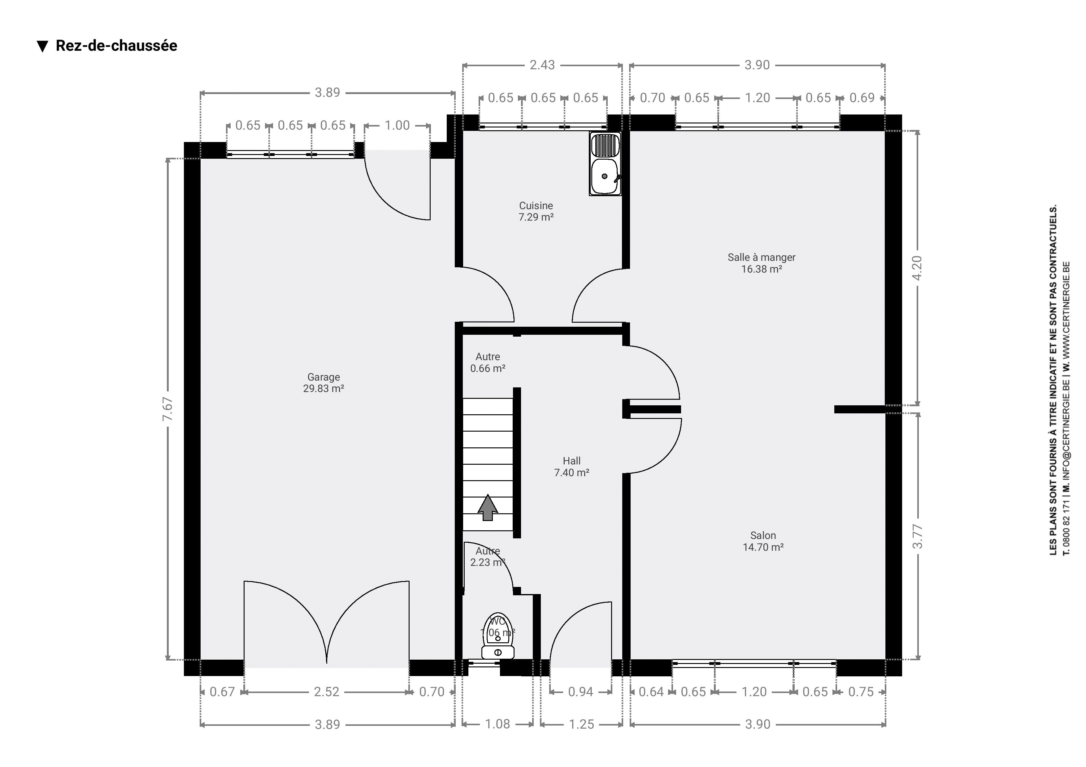
Elle se compose comme suit au rez : hall, lumineux séjour de 31m², cuisine séparée et un spacieux garage de 30m² avec accès au jardin.
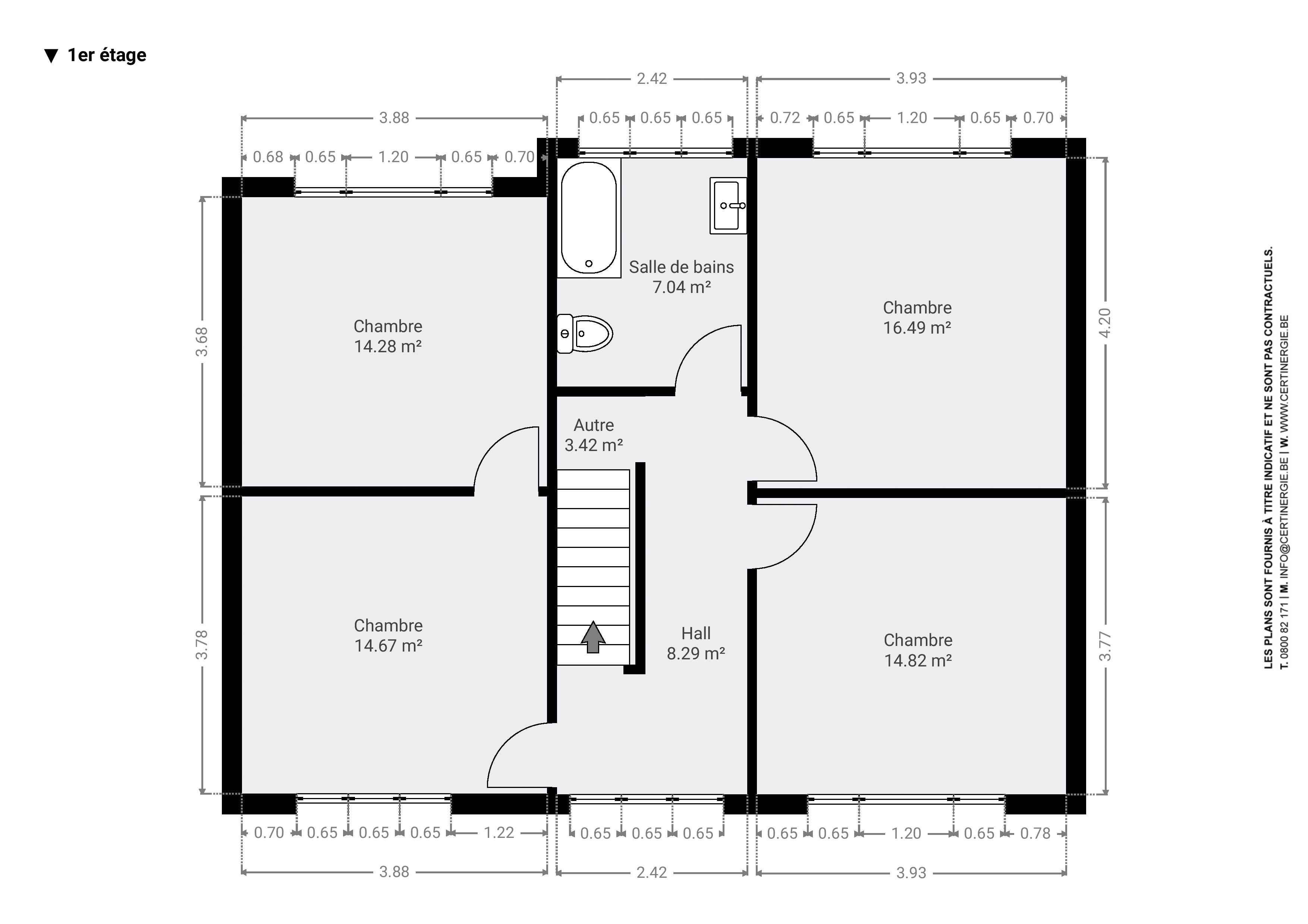
Au +1 : hall, 4 chambres de 14, 15, 15 et 16m² et une SDB.
Au +2 : hall, 2 chambres de 28 et 31m² et 2 greniers de 12m².
Au -1 : belles caves de 76m² très saines utilisées comme rangements, local technique et buanderie avec un accès direct au jardin.
Extérieurs : jardin de 250m² idéalement orienté SUD-OUEST
Equipements : toiture de 2021 isolée, cc mazout, châssis bois SV, volets manuels, direct égouts, …
Travaux à prévoir : rénovation intégrale du bien sauf la toiture.
Atouts: localisation exceptionnelle dans un quartier recherché, parking aisé (garage et place de parking) et plusieurs poss. d’aménagement: maison unifamiliale ou investissement (création de 2 à 3 appartements (à confirmer avec le service urbanisme)). À visiter sans tarder! Les éléments communiqués sont fournis avec le plus grand soin, sans toutefois présenter de caractère contractuel.
PEB D 336 Kwh/m².an n°20251216029703. Plus d'infos et plans au 019/770.500 ou via : https://www.immodemarneffe.be/fr/bien/a-vendre/maison/4300-waremme/7324234

Adresse :

Avenue Emile Vandervelde 86 - 4300 Waremme

Documents

Général

Référence 7324234
Catégorie Maison
Meublé Non
Nombre de chambres 4
Nombre de salles de bain 1
Jardin Oui
Surface du jardin 280 m²
Garage Oui
Terrasse Non
Parking Oui
Surface habitable 190 m²
Surface du terrain 430 m²
Disponibilité à l'acte

Bâtiment

Année de construction 1954
Nombre de garage 1
Parking intérieur Oui
Parking extérieur Oui
Parking(s) extérieur (nombre) 1
Type de construction traditionnel

Nom, catégorie & situation

Nombre d'étages 2

Equipement de base

Accès handicapés Non
Cuisine Oui
Chauffage (type) mazout (chauf. centr.)

Spécificités terrain

Orientation du bâtiment (façade arrière) sud-ouest
Type d'environnement central
Exposition de la façade avant nord-est
Orientation du jardin sud ouest
Risque d'inondation 2023 (type innondation) Classe B (faible probabilité sous le changement climatique ap.2050)

En chiffres

Surface bâtie (surf. bât. princ.) 95
Nbre de cave(s) (nombre) 5
Chambre 1 (surface) 14 m²
Chambre 2 (surface) 15 m²
Chambre 3 (surface) 15 m²
Chambre 4 (surface) 16 m²
Largeur de façade 11
Garage (surface) 30 m²
Salle de séjour (surface) 31 m²
Cuisine (surface) 7 m²
Salle de bain 1 (surface) 7 m²
Caves (surface) 76 m²
Grenier (surface) 76 m²
Hall d'entrée (surface) 9 m²
Hall de nuit (surface) 8 m²

Divers

Nbre de grenier(s) (nombre) 2

Sécurité

Volets Oui

À proximité

Magasins (distance (m)) 800
Écoles (distance (m)) 500
Transports en commun (distance (m)) 100
Centre-ville (distance (m)) 500
Centre sportif (distance (m)) 1000
Magasins Oui
Ecoles Oui
Transports en commun Oui
Centre-ville Oui
Centre sportif Oui
Autoroute Oui
Autoroute (distance (m)) 2500
Gare Oui
Gare (distance (m)) 1000
Crèche Oui
Crèche (distance) 1200

Equipement extérieur

Piscine Non

Charges & Rendement

Sous régime TVA Non
Loué Non

Domaine juridique

Servitude Non
Permis de bâtir Non
Permis de lotir Non
Affectation urbanistique zone d'habitat

Raccordements

Égouts Oui
Électricité Oui
Citerne à mazout Oui
Eau Oui

Équipements techniques

Châssis (type) bois
Vitrage (type) simple vitrage

Cadastre

Revenu cadastral (€) (montant) 1321 €

Certificats / Attestations

Certificat d'électricité (oui/non) oui, non conforme

Certificats énergétiques

Label PEB (classe) D
PEB E-SPEC (kwh/m²/an) 336
Emission CO2 (émission CO2) 84
E total (Kwh/an) 88429
PEB code unique 20251216029703
PEB Min (kWh/m²/an) 336 kWh/m²/an
PEB Max (kWh/m²/an) 336 kWh/m²/an
PEB valide jusqu'au (datetime) 16/12/2035
Date du PEB (datetime) 16/12/2025
Prendre contact pour le bien : 7324234

* Champs obligatoires

Préférences pour les cookies

La protection de vos données personnelles est importante pour nous. C’est pourquoi nous détaillons ci-dessous les différents services et fonctionnalités du site qui utilisent des cookies et nous vous laissons décider des cookies que vous souhaitez autoriser ou refuser.

Veuillez cependant noter que si vous bloquez certains types de cookies, cela pourrait impacter votre expérience de navigation sur notre site ainsi que les fonctionnalités disponibles.

Nous utilisons des cookies fonctionnels obligatoires pour assurer le bon fonctionnement du site. Ils sont, par exemple, nécessaires pour retrouver le résultat d’une recherche ou enregistrer le choix de la langue.

Certaines fonctionnalités, comme l’affichage de vidéos ou de cartes géographiques, sont assurées via des composants externes développés par des partenaires comme YouTube ou Google. Certains composants utilisent des cookies qui sont susceptibles de permettre à ces tiers de suivre le comportement des internautes afin, par exemple, de réaliser du ciblage publicitaire. L’activation de ces fonctionnalités et des cookies associés est donc soumis à votre consentement.