Maison - à vendre - 4300 Waremme À partir de 250 000 €

Maison - à vendre - 4300 Waremme
4 2 130 m² PEB : D

Description

L'Immobilière de MARNEFFE a le plaisir de vous présenter cette lumineuse maison de 4 chambres, complètement rénovée en 2020, idéalement située en plein cœur du centre de Waremme, à proximité immédiate de toutes les commodités (commerces, écoles, gare, ...).
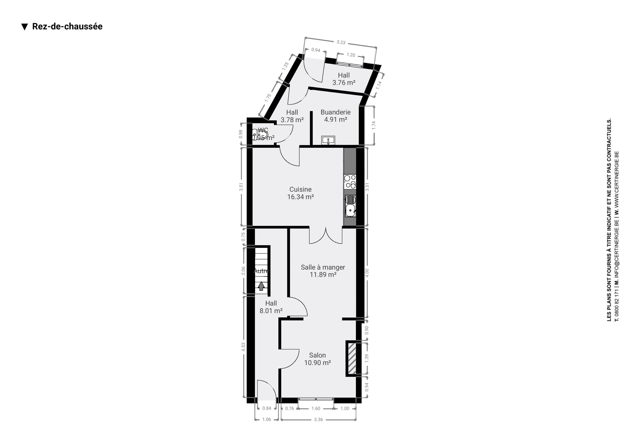
Ce bien de 130m² habitables en très bon état se compose comme suit au RDC : hall d’entrée, séjour de 23m², cuisine équipée de 16m², buanderie + WC donnant sur la cour arrière.
Au +1 : hall de nuit, 2 chambres de 10 et 12m² et salle de douche avec WC.
Au +2 : hall de nuit, 2 chambres de 9 et 12m² et seconde salle de douche avec WC.
Au -1 : caves de 27m².
Extérieurs : cour agréablement aménagée, parfaite pour se détendre ou recevoir en toute tranquillité en centre-ville.
Equipements+++ : chauffage central mazout, châssis PVC DV (2020), nouvelle toiture de 2020 et isolée, électricité CONFORME, égouts…
Venez poser vos meubles dans cette charmante habitation entièrement rénovée ! Coup de cœur assuré !
PEB D 323kWh/m².an - n°20201001022733.
Plans disponibles sur notre site internet. Faire offre à partir de 250.000€.
Plus d'infos au 019/770.500 ou via https://www.immodemarneffe.be/fr/bien/a-vendre/maison/4300-waremme/7276306

Adresse :

Rue de Huy 14 - 4300 Waremme

Documents

Général

Référence 7276306
Catégorie Maison
Meublé Non
Nombre de chambres 4
Nombre de salles de bain 2
Garage Non
Terrasse Oui
Parking Non
Surface habitable 130 m²
Surface du terrain 112 m²
Disponibilité à l'acte

Bâtiment

Année de construction 1899
Nombre de garage 0
Parking extérieur Non
Année de rénovation 2021
Parking(s) extérieur (nombre) 0
Type de construction traditionnel

Nom, catégorie & situation

Nombre d'étages (numéro) 2

Equipement de base

Accès handicapés Non
Cuisine Oui
Chauffage (Format/energie) mazout (chauf. centr.)
Type de cuisine semi-équipée

Spécificités terrain

Orientation du bâtiment (-) nord-ouest
Type d'environnement central
Exposition de la façade avant (-) sud-est
Orientation du jardin (-) nord ouest
Risque d'inondation 2023 (type innondation) Classe A (aucune chance)

En chiffres

Surface bâtie (-) 59
Nbre de cave(s) (nombre) 2
Nbre de toilette(s) (nombre) 3
Chambre 1 (surface) 12 m²
Chambre 2 (surface) 12 m²
Chambre 3 (surface) 10 m²
Chambre 4 (surface) 9 m²
Largeur de façade 5
Nbre de terrasse(s) (nombre) 1
Salle de séjour (surface) 23 m²
Cuisine (surface) 16 m²
Buanderie (surface) 9 m²
Salle de bain 1 (surface) 4 m²
Caves (surface) 27 m²
Sdd (surface) 4 m²
Hall d'entrée (surface) 8 m²
Orientation de la terrasse 1 (-) nord-ouest
Hall de nuit (surface) 15 m²

Divers

Buanderie Oui
Lave-vaisselle Oui
Téléphone Oui
Cave Oui
Télévision Oui
Frigo Oui
Four Oui
Hotte Oui

À proximité

Magasins (distance (m)) 150
Écoles (distance (m)) 250
Transports en commun (distance (m)) 150
Centre-ville (distance (m)) 10
Centre sportif (distance (m)) 750
Magasins Oui
Ecoles Oui
Transports en commun Oui
Centre-ville Oui
Centre sportif Oui
Autoroute Oui
Autoroute (distance (m)) 3000
Gare Oui
Gare (distance (m)) 300
Crèche Oui
Crèche (distance) 300

Equipement extérieur

Piscine Non
Clôture Oui

Charges & Rendement

Sous régime TVA Non
Loué Non

Domaine juridique

Servitude Non
Permis de bâtir Non
Permis de lotir Non
Affectation urbanistique zone d'habitat

Raccordements

Égouts Oui
Électricité Oui
Citerne à mazout Oui
Eau Oui

Équipements techniques

Châssis (Ouvertures) pvc
Vitrage (type) double vitrage

Cadastre

Revenu cadastral (€) (montant) 488 €

Certificats / Attestations

Certificat d'électricité (oui/non) oui, conforme
Attestat. citerne (oui/non) non

Energie

Label PEB (Classe) D
PEB E-SPEC (kwh/m²/an) (Consommation énergétique) 323
Emission CO2 (Emission GES) 80
E total (Kwh/an) 32434
PEB code unique (-) 20201001022733
PEB Min (kWh/m²/an) (-) 323
PEB Max (kWh/m²/an) (-) 323
PEB valide jusqu'au (validité) 01/10/2030
Date du PEB 01/10/2020
Prendre contact pour le bien : 7276306

* Champs obligatoires

Préférences pour les cookies

La protection de vos données personnelles est importante pour nous. C’est pourquoi nous détaillons ci-dessous les différents services et fonctionnalités du site qui utilisent des cookies et nous vous laissons décider des cookies que vous souhaitez autoriser ou refuser.

Veuillez cependant noter que si vous bloquez certains types de cookies, cela pourrait impacter votre expérience de navigation sur notre site ainsi que les fonctionnalités disponibles.

Nous utilisons des cookies fonctionnels obligatoires pour assurer le bon fonctionnement du site. Ils sont, par exemple, nécessaires pour retrouver le résultat d’une recherche ou enregistrer le choix de la langue.

Certaines fonctionnalités, comme l’affichage de vidéos ou de cartes géographiques, sont assurées via des composants externes développés par des partenaires comme YouTube ou Google. Certains composants utilisent des cookies qui sont susceptibles de permettre à ces tiers de suivre le comportement des internautes afin, par exemple, de réaliser du ciblage publicitaire. L’activation de ces fonctionnalités et des cookies associés est donc soumis à votre consentement.