Maison - à vendre - 4287 Lincent 325 000 €

Maison - à vendre - 4287 Lincent
3 1 105 m² 1 2 PEB : B

Description

L'immobilière de Marneffe a le plaisir de vous proposer cette agréable maison 3 chambres dans un clos résidentiel à Pellaines (Lincent). Son emplacement stratégique constitue un atout majeur, à proximité immédiate des grands axes, de l’accès E40 et de toutes les commodités, offrant un parfait équilibre entre tranquillité et facilité de déplacement.
Composition du bien au RDC : hall d'entrée + WC, lumineux séjour de 35m² avec cuisine équipée et garage de 20m² avec porte auto.
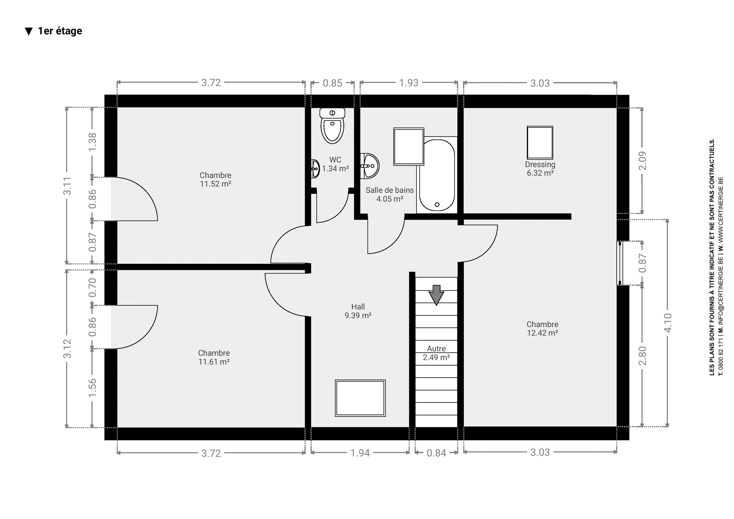
Au 1er : hall de nuit + WC, 2 chambres de 12m² ainsi qu'une chambre avec dressing de 19m² et salle de bain.
Extérieurs : vous profiterez d’un agréable jardin entièrement clôturé avec terrasse pavée, idéal pour les moments de détente. Un parking pavé à l’avant complète l’ensemble.
Equipements ++ : construction "Jumatt" de 2011, châssis PVC double vitrage, électricité conforme, 18 panneaux photo, chauffage central gaz de ville, citerne d'eau + groupe hydro, adoucisseur, VMC simple flux, vides ventilés, fosse septique + égout.
Bien actuellement loué 950€ par mois.
Une maison confortable, parfaitement équipée et idéalement située, offrant un excellent cadre de vie. A découvrir sans tarder !
Très bon PEB B 138kWh/m²/an - 20260129002073
Les éléments communiqués sont fournis avec le plus grand soin, sans toutefois présenter de caractère contractuel.
Infos via https://www.immodemarneffe.be/fr/bien/a-vendre/maison/4287-lincent/7554415

Adresse :

Clos de la Drève 2 - 4287 Lincent

Documents

Général

Référence 7554415
Catégorie Maison
Meublé Non
Nombre de chambres 3
Nombre de salles de bain 1
Jardin Oui
Surface du jardin 300 m²
Garage Oui
Terrasse Oui
Parking Oui
Surface habitable 105 m²
Surface du terrain 556 m²
Disponibilité en fonct. du locataire

Bâtiment

Année de construction 2011
Nombre de garage 1
Parking intérieur Non
Parking extérieur Oui
Parking(s) extérieur (nombre) 2
Type de construction ossature bois

Nom, catégorie & situation

Nombre d'étages (numéro) 1

Equipement de base

Accès handicapés Non
Cuisine Oui
Chauffage (Format/energie) gaz (chau. centr.)
Type de cuisine équipée
Adoucisseur Oui

Spécificités terrain

Orientation du bâtiment (-) nord
Type d'environnement campagne
Exposition de la façade avant (-) sud
Orientation du jardin (-) ouest
Risque d'inondation 2023 (type innondation) Classe A (aucune chance)

En chiffres

Surface bâtie (surf. bât. princ.) 76
Nbre de toilette(s) (nombre) 2
Chambre 1 (surface) 12 m²
Chambre 2 (surface) 12 m²
Chambre 3 (surface) 19 m²
Largeur de façade 11
Garage (surface) 20 m²
Nbre de terrasse(s) (nombre) 1
Salle de séjour (surface) 35 m²
Salle de bain 1 (surface) 4 m²
Hall d'entrée (surface) 7 m²
Orientation de la terrasse 1 (-) ouest
Hall de nuit (surface) 10 m²

Divers

Lave-vaisselle Oui
Téléphone Oui
Coin à déjeuner Oui
Télévision Oui
Frigo Oui
Four Oui
Hotte Oui

À proximité

Magasins (distance (m)) 1500
Écoles (distance (m)) 2500
Transports en commun (distance (m)) 200
Centre-ville (distance (m)) 8000
Magasins Oui
Ecoles Oui
Transports en commun Oui
Centre-ville Oui
Autoroute Oui
Autoroute (distance (m)) 2500
Crèche Oui
Crèche (distance) 2000

Equipement extérieur

Piscine Non
Citerne d'eau Oui
Citerne d'eau - capacité 5000
Groupe hydrophore Oui
Clôture Oui
Abri de jardin Oui

Charges & Rendement

Sous régime TVA Non
Loué Oui

Domaine juridique

Servitude Non
Permis de bâtir Oui
Permis de lotir Oui
Affectation urbanistique zone d'habitat rurale

Raccordements

Égouts Oui
Électricité Oui
Gaz Oui
Eau Oui

Équipements techniques

Châssis (Ouvertures) pvc
Panneaux solaires Oui
Type de panneaux solaires photovoltaïque
Vitrage (type) double vitrage

Caractéristiques Principales

Surface de terrasse 1 35 m²

Cadastre

Revenu cadastral (€) (montant) 739 €

Certificats / Attestations

Certificat d'électricité (oui/non) oui, conforme

Certificats énergétiques

Label PEB (Classe) B
PEB E-SPEC (kwh/m²/an) (Consommation énergétique) 138
Emission CO2 (Emission GES) 23
E total (Kwh/an) 20536
PEB code unique (-) 20260129002073
PEB valide jusqu'au (validité) 29/01/2036
Date du PEB 29/01/2026
Prendre contact pour le bien : 7554415

* Champs obligatoires

Préférences pour les cookies

La protection de vos données personnelles est importante pour nous. C’est pourquoi nous détaillons ci-dessous les différents services et fonctionnalités du site qui utilisent des cookies et nous vous laissons décider des cookies que vous souhaitez autoriser ou refuser.

Veuillez cependant noter que si vous bloquez certains types de cookies, cela pourrait impacter votre expérience de navigation sur notre site ainsi que les fonctionnalités disponibles.

Nous utilisons des cookies fonctionnels obligatoires pour assurer le bon fonctionnement du site. Ils sont, par exemple, nécessaires pour retrouver le résultat d’une recherche ou enregistrer le choix de la langue.

Certaines fonctionnalités, comme l’affichage de vidéos ou de cartes géographiques, sont assurées via des composants externes développés par des partenaires comme YouTube ou Google. Certains composants utilisent des cookies qui sont susceptibles de permettre à ces tiers de suivre le comportement des internautes afin, par exemple, de réaliser du ciblage publicitaire. L’activation de ces fonctionnalités et des cookies associés est donc soumis à votre consentement.