Maison - à vendre - 4280 Hannut 180 000 €

Maison - à vendre - 4280 Hannut
3 1 115 m² 1 1 PEB : G

Description

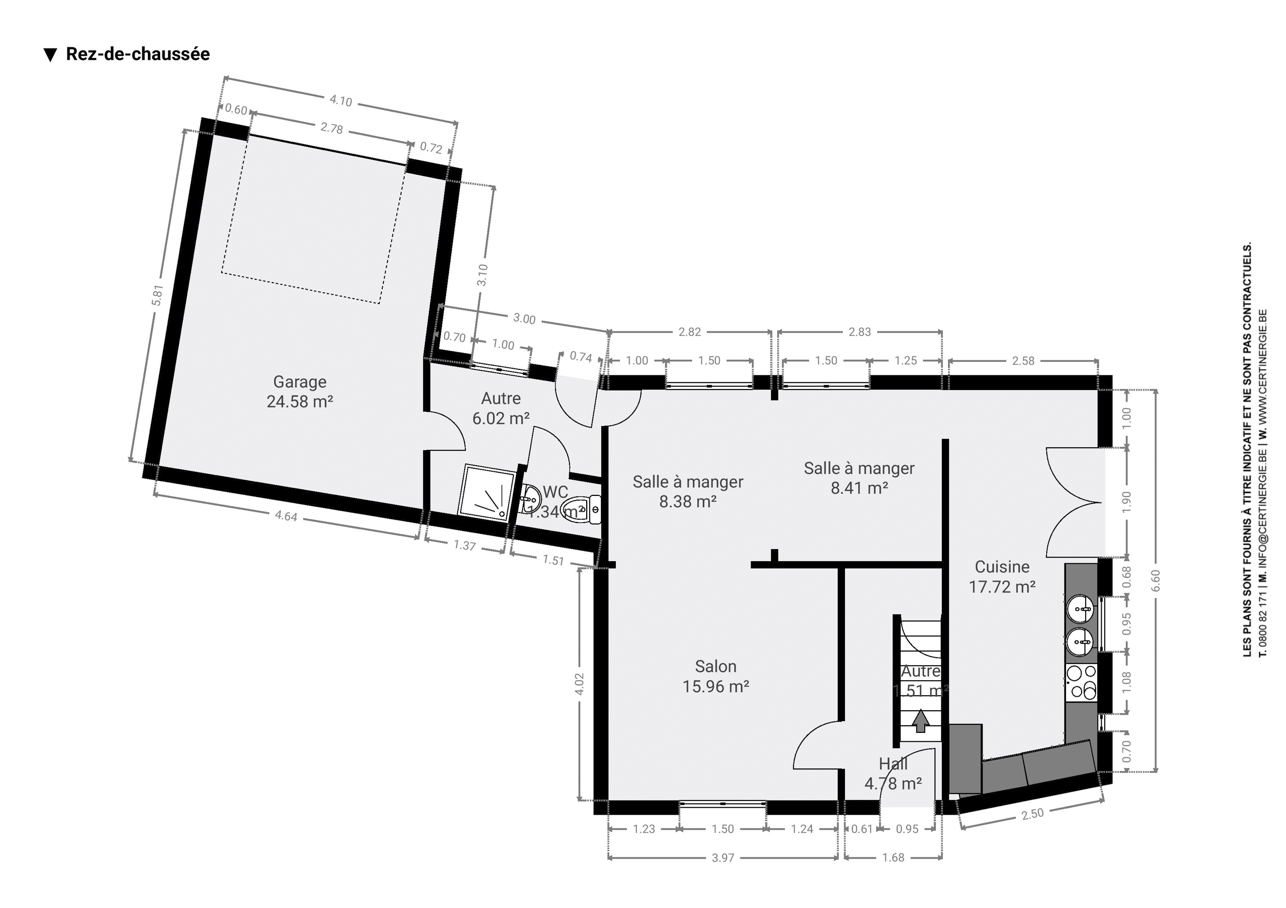
L'immobilière de Marneffe a le plaisir de vous proposer cette agréable maison villageoise à rénover à Hannut. Idéalement située dans le paisible village de Grand-Hallet, à 2' de l'accès E40 et non loin des commodités. Venez découvrir le potentiel de cette habitation 3 à 4 chambres avec garage et jardin. Composition au RDC : hall d'entrée, séjour de 33m², spacieuse cuisine de 18m² avec accès à la terrasse, buanderie et garage de 25m². Au 1er : hall de nuit, 3 chambres de 12, 14 et 18m² et salle de bain. Au 2e : spacieux grenier aménageable de 42m². -1 : caves de 21m². Extérieurs : parcelle de 345m² avec terrasse pavée, cour et agréable jardin à réaménager. Equipements : châssis alu et bois SV avec volets, 2 poêles à mazout, citerne d'eau de pluie, relié à l'égout. Rénovation globale à prévoir. Un magnifique potentiel idéalement situé dans un quartier agréable et proche de tout ! PEB G 550kWh/m²/an - n°20260108028397. Plans disponibles sur notre site. Les éléments communiqués sont fournis avec le plus grand soin, sans toutefois présenter de caractère contractuel. Infos via https://www.immodemarneffe.be/fr/bien/a-vendre/maison/4280-hannut/7334574

Adresse :

Rue Emile Duchesne 37 - 4280 Hannut

Documents

Général

Référence 7334574
Catégorie Maison
Meublé Non
Nombre de chambres 3
Nombre de salles de bain 1
Jardin Oui
Surface du jardin 150 m²
Garage Oui
Terrasse Oui
Parking Oui
Surface habitable 115 m²
Surface du terrain 345 m²
Disponibilité à l'acte

Bâtiment

Année de construction 1930
Nombre de garage 1
Parking intérieur Non
Parking extérieur Oui
Parking(s) extérieur (nombre) 1
Type de construction traditionnel

Nom, catégorie & situation

Nombre d'étages 2

Equipement de base

Accès handicapés Non
Cuisine Oui
Chauffage (type) poêle à mazout
Type de cuisine séparée

Spécificités terrain

Orientation du bâtiment (façade arrière) nord
Type d'environnement campagne
Exposition de la façade avant sud
Risque d'inondation 2023 (type innondation) Classe A (aucune chance)

En chiffres

Surface bâtie (surf. bât. princ.) 100
Nbre de cave(s) (nombre) 1
Nbre de toilette(s) (nombre) 2
Chambre 1 (surface) 12 m²
Chambre 2 (surface) 14 m²
Chambre 3 (surface) 18 m²
Largeur de façade 15
Garage (surface) 25 m²
Nbre de terrasse(s) (nombre) 1
Salle de séjour (surface) 16 m²
Salle à manger (surface) 17 m²
Cuisine (surface) 18 m²
Buanderie (surface) 8 m²
Salle de bain 1 (surface) 6 m²
Caves (surface) 21 m²
Grenier (surface) 42 m²
Hall d'entrée (surface) 5 m²
Orientation de la terrasse 1 est
Hall de nuit (surface) 6 m²

Divers

Buanderie Oui
Nbre de grenier(s) (nombre) 1
Cave Oui

Sécurité

Volets Oui

À proximité

Magasins (distance (m)) 5000
Écoles (distance (m)) 500
Transports en commun (distance (m)) 300
Centre-ville (distance (m)) 5000
Magasins Oui
Ecoles Oui
Transports en commun Oui
Centre-ville Oui
Autoroute Oui
Autoroute (distance (m)) 2500
Crèche Oui
Crèche (distance) 2500

Equipement extérieur

Piscine Non
Citerne d'eau Oui
Groupe hydrophore Oui
Cour Oui
Clôture Oui
Abri de jardin Oui

Charges & Rendement

Sous régime TVA Non
Loué Non

Domaine juridique

Servitude Non
Permis de bâtir Non
Permis de lotir Non
Affectation urbanistique zone d'habitat rurale

Raccordements

Égouts Oui
Électricité Oui
Citerne à mazout Oui
Eau Oui

Équipements techniques

Châssis (type) autre
Vitrage (type) simple vitrage

Caractéristiques Principales

Surface de terrasse 1 25 m²

Cadastre

Revenu cadastral (€) (montant) 366 €

Certificats / Attestations

Certificat d'électricité (oui/non) oui, non conforme
Attestat. citerne (oui/non) non

Energie

Label PEB (classe) G
PEB E-SPEC (kwh/m²/an) 550
Emission CO2 (émission CO2) 136
E total (Kwh/an) 82280
PEB code unique 20260108028397
PEB valide jusqu'au (datetime) 08/01/2036
Date du PEB (datetime) 08/01/2026
Prendre contact pour le bien : 7334574

* Champs obligatoires

Préférences pour les cookies

La protection de vos données personnelles est importante pour nous. C’est pourquoi nous détaillons ci-dessous les différents services et fonctionnalités du site qui utilisent des cookies et nous vous laissons décider des cookies que vous souhaitez autoriser ou refuser.

Veuillez cependant noter que si vous bloquez certains types de cookies, cela pourrait impacter votre expérience de navigation sur notre site ainsi que les fonctionnalités disponibles.

Nous utilisons des cookies fonctionnels obligatoires pour assurer le bon fonctionnement du site. Ils sont, par exemple, nécessaires pour retrouver le résultat d’une recherche ou enregistrer le choix de la langue.

Certaines fonctionnalités, comme l’affichage de vidéos ou de cartes géographiques, sont assurées via des composants externes développés par des partenaires comme YouTube ou Google. Certains composants utilisent des cookies qui sont susceptibles de permettre à ces tiers de suivre le comportement des internautes afin, par exemple, de réaliser du ciblage publicitaire. L’activation de ces fonctionnalités et des cookies associés est donc soumis à votre consentement.