Maison - option v. - 4257 Berloz

Maison - à vendre - 4257 Berloz
3 1 135 m² 1 3 PEB : B

Description

OPTION OPTION !! L'immobilière de MARNEFFE vous propose cette construction récente (2010), 3 à 4 chambres, dans la commune de Berloz, à 3 minutes de Waremme, gare et E40.
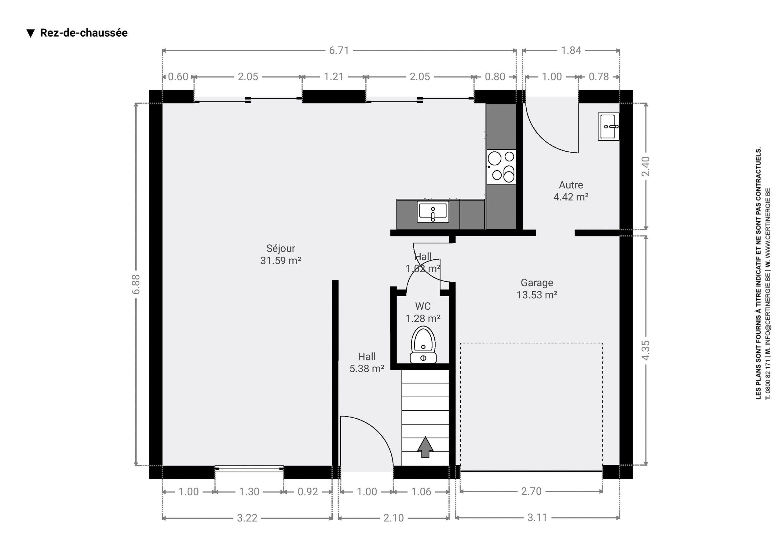
Habitation composée comme suit au RDC : hall, spacieux et lumineux séjour de 32 m² ouvert sur la cuisine récente et accès terrasse, WC individuel, garage et chaufferie.
A l'étage : hall de nuit, 3 chambres de 16, 13 et 9 m², salle de bain avec baignoire, douche, double vasque, WC et buanderie.
Au second: grenier aménagé en chambre/bureau de 35 m² avec vélux.
Extérieurs : terrain de 512m² avec terrasse et jardin clôturé idéalement orientés SUD, parking 3 véhicules en façade.
Equipements : pompe à chaleur air-air + poêle à pellets, châssis PVC double, panneaux photovoltaïques, électricité conforme et isolation +++.
Proximité ligne chemin de fer en face.
Belle opportunité à visiter sans tarder ! Faire offre à partir de 250.000€. Les éléments communiqués sont fournis avec le plus grand soin, sans toutefois présenter de caractère contractuel. PEB B 153 Kwh/m².an n° 20240318023145. Plus d'informations sur https://www.immodemarneffe.be/fr/bien/a-vendre/maison/4257-berloz/7548464

Adresse :

Rue des Temples 43 - 4257 Berloz

Documents

Général

Référence 7548464
Catégorie Maison
Meublé Non
Nombre de chambres 3
Nombre de salles de bain 1
Jardin Oui
Surface du jardin 350 m²
Garage Oui
Terrasse Oui
Parking Oui
Surface habitable 135 m²
Surface du terrain 512 m²
Disponibilité à l'acte

Bâtiment

Année de construction 2010
Nombre de garage 1
Parking intérieur Oui
Parking extérieur Oui
Année de rénovation 2010
Parking(s) extérieur (nombre) 3
Type de construction traditionnel
Télécommande porte garage Oui

Nom, catégorie & situation

Nombre d'étages 2

Equipement de base

Accès handicapés Oui
Cuisine Oui
Chauffage (type) pompe à chaleur
Type de cuisine équipée

Spécificités terrain

Orientation du bâtiment (façade arrière) sud
Type d'environnement campagne
Exposition de la façade avant nord
Orientation du jardin sud
Risque d'inondation 2023 (type innondation) Classe A (aucune chance)

En chiffres

Surface bâtie (surf. bât. princ.) 50
Nbre de toilette(s) (nombre) 2
Chambre 1 (surface) 16 m²
Chambre 2 (surface) 35 m²
Chambre 3 (surface) 13 m²
Largeur de façade 8.5
Garage (surface) 14 m²
Nbre de terrasse(s) (nombre) 1
Salle de séjour (surface) 26 m²
Cuisine (surface) 6 m²
Buanderie (surface) 3 m²
Salle de bain 1 (surface) 7 m²
Bureau (surface) 9 m²
Hall d'entrée (surface) 5 m²
Orientation de la terrasse 1 sud

Divers

Buanderie Oui
Lave-vaisselle Oui
Téléphone Oui
Cave Oui
Télévision Oui
Four Oui
Hotte Oui

À proximité

Magasins (distance (m)) 4000
Écoles (distance (m)) 1400
Transports en commun (distance (m)) 650
Centre-ville (distance (m)) 4000
Centre sportif (distance (m)) 4000
Magasins Oui
Ecoles Oui
Transports en commun Oui
Centre-ville Oui
Centre sportif Oui
Autoroute Oui
Autoroute (distance (m)) 2000
Crèche Oui
Crèche (distance) 1300

Equipement extérieur

Piscine Non
Citerne d'eau Oui
Citerne d'eau - capacité 5000
Groupe hydrophore Oui
Clôture Oui
Abri de jardin Oui

Charges & Rendement

Sous régime TVA Non
Loué Non

Domaine juridique

Servitude Non
Permis de bâtir Oui
Affectation urbanistique zone d'habitat rurale

Raccordements

Égouts Oui
Électricité Oui
Eau Oui

Équipements techniques

Châssis (type) pvc
Panneaux solaires Oui
Type de panneaux solaires photovoltaïque
Vitrage (type) double vitrage

Caractéristiques Principales

Surface de terrasse 1 30 m²

Cadastre

Revenu cadastral (€) (montant) 683 €

Certificats / Attestations

Certificat d'électricité (oui/non) oui, conforme
Attestat. citerne (oui/non) non

Certificats énergétiques

Label PEB (classe) B
PEB E-SPEC (kwh/m²/an) 153
Emission CO2 (émission CO2) 44
E total (Kwh/an) 25111
PEB code unique 20240318023145
PEB Min (kWh/m²/an) 153 kWh/m²/an
PEB Max (kWh/m²/an) 153 kWh/m²/an
PEB valide jusqu'au (datetime) 18/03/2034
Date du PEB (datetime) 18/03/2024
Prendre contact pour le bien : 7548464

* Champs obligatoires

Préférences pour les cookies

La protection de vos données personnelles est importante pour nous. C’est pourquoi nous détaillons ci-dessous les différents services et fonctionnalités du site qui utilisent des cookies et nous vous laissons décider des cookies que vous souhaitez autoriser ou refuser.

Veuillez cependant noter que si vous bloquez certains types de cookies, cela pourrait impacter votre expérience de navigation sur notre site ainsi que les fonctionnalités disponibles.

Nous utilisons des cookies fonctionnels obligatoires pour assurer le bon fonctionnement du site. Ils sont, par exemple, nécessaires pour retrouver le résultat d’une recherche ou enregistrer le choix de la langue.

Certaines fonctionnalités, comme l’affichage de vidéos ou de cartes géographiques, sont assurées via des composants externes développés par des partenaires comme YouTube ou Google. Certains composants utilisent des cookies qui sont susceptibles de permettre à ces tiers de suivre le comportement des internautes afin, par exemple, de réaliser du ciblage publicitaire. L’activation de ces fonctionnalités et des cookies associés est donc soumis à votre consentement.