Villa - à vendre - 4250 Geer 500 000 €

Villa - à vendre - 4250 Geer
4 1 175 m² 1 2 PEB : B

Description

L’Immobilière de Marneffe a le plaisir de vous présenter, au cœur du charmant village d’Omal (commune de Geer), une spacieuse villa 4 chambres implantée sur un superbe terrain de 2.034 m². Construite récente (2000), cette habitation robuste et soignée offre une superficie habitable de 175 m², complétée par un vaste grenier et un beau garage. Ce bien vous séduira par ses nombreux atouts techniques et énergétiques : très bon PEB B, panneaux photo (9.100 kW), élec. conforme (2026), pompe à chaleur, k7 à bois ainsi qu’une citerne d’eau de pluie avec groupe.
Il se compose comme suit : hall + WC, séjour de 40m², cuisine récente avec coin déjeuner, buanderie, garage et des VV.
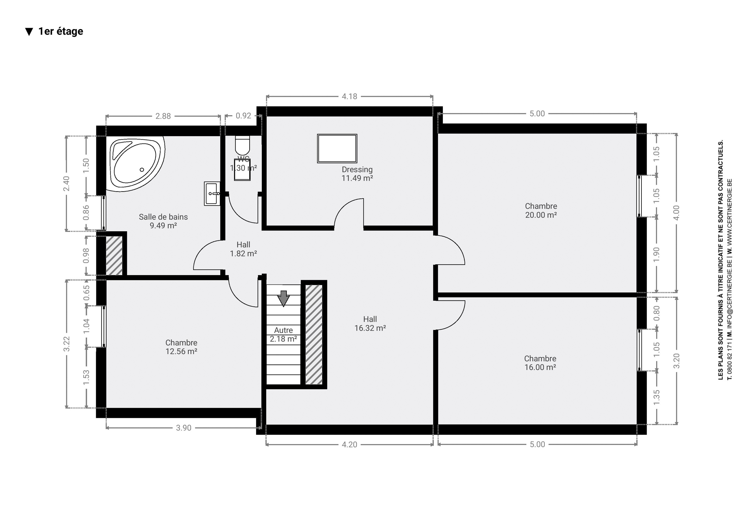
+1 : spacieux hall + WC, 4 chambres de 11, 13, 16 et 20m² et SDB.
+2 : greniers de 57m²
Extérieurs+++ : Vous profiterez d’un superbe extérieur baigné de lumière, avec un grand jardin de 1450 m² orienté sud-est. Il est agrémenté d’une piscine hors sol, d’un charmant étang et d'une terrasse pavée pour les beaux jours. Nombreuses poss. de stationnement. Situation idéale dans un village champêtre niché au milieu des champs tout en restant très proche de Waremme, hannut et E40.
Equipements+++ : SUPER PEB B 139kWh/m².an n°20260129018514, châssis PVC DV, CC mazout, adoucisseur, alarme…
Coup de cœur assuré ! A visiter sans tarder ! Les éléments communiqués sont fournis avec le plus grand soin, sans toutefois présenter de caractère contractuel. Infos https://www.immodemarneffe.be/fr/bien/a-vendre/maison/4250-geer/7563459

Adresse :

Rue Jules Stiernet 93 - 4250 Geer

Documents

Général

Référence 7563459
Catégorie Villa
Meublé Non
Nombre de chambres 4
Nombre de salles de bain 1
Jardin Oui
Surface du jardin 1400 m²
Garage Oui
Terrasse Oui
Parking Oui
Surface habitable 175 m²
Surface du terrain 2034 m²
Disponibilité à l'acte

Bâtiment

Année de construction 2000
Nombre de garage 1
Parking intérieur Oui
Parking extérieur Oui
Parking(s) extérieur (nombre) 2
Type de construction traditionnel
Télécommande porte garage Oui

Nom, catégorie & situation

Nombre d'étages 2

Spécificités terrain

Orientation du bâtiment (façade arrière) sud-est
Type d'environnement campagne
Exposition de la façade avant nord-ouest
Orientation du jardin sud est
Risque d'inondation 2023 (type innondation) Classe A (aucune chance)

En chiffres

Surface bâtie (surf. bât. princ.) 128
Nbre de toilette(s) (nombre) 2
Chambre 1 (surface) 11 m²
Chambre 2 (surface) 13 m²
Chambre 3 (surface) 16 m²
Chambre 4 (surface) 20 m²
Largeur de façade 33
Garage (surface) 25 m²
Nbre de terrasse(s) (nombre) 1
Salle de séjour (surface) 40 m²
Cuisine (surface) 17 m²
Buanderie (surface) 12 m²
Salle de bain 1 (surface) 10 m²
Grenier (surface) 57 m²
Hall d'entrée (surface) 17 m²
Orientation de la terrasse 1 sud-est
Hall de nuit (surface) 17 m²

Equipement de base

Cuisine Oui
Chauffage (type) mazout (chauf. centr.)
Type de cuisine équipée
Adoucisseur Oui
Date du dernier entretien de la chaudière 21/01/2026

Divers

Buanderie Oui
Lave-vaisselle Oui
Téléphone Oui
Coin à déjeuner Oui
Télévision Oui
Frigo Oui
Four Oui
Hotte Oui
Feu ouvert Oui

Équipements techniques

Air conditionné Oui
Châssis (type) pvc
Panneaux solaires Oui
Type de panneaux solaires photovoltaïque
Vitrage (type) double vitrage

À proximité

Magasins (distance (m)) 5000
Écoles (distance (m)) 2600
Transports en commun (distance (m)) 5
Centre-ville (distance (m)) 6000
Centre sportif (distance (m)) 5700
Magasins Oui
Ecoles Oui
Transports en commun Oui
Centre-ville Oui
Centre sportif Oui
Autoroute Oui
Autoroute (distance (m)) 7000
Gare Oui
Gare (distance (m)) 6300
Crèche Oui
Crèche (distance) 5700

Equipement extérieur

Piscine Oui
Citerne d'eau Oui
Groupe hydrophore Oui
Abri de jardin Oui

Charges & Rendement

Sous régime TVA Non
Loué Non

Domaine juridique

Servitude Non
Permis de bâtir Oui
Affectation urbanistique zone d'habitat rurale

Raccordements

Égouts Oui
Électricité Oui
Citerne à mazout Oui
Eau Oui

Caractéristiques Principales

Surface de terrasse 1 115 m²

Cadastre

Revenu cadastral (€) (montant) 909 €

Sécurité

Alarme Oui

Certificats / Attestations

Certificat d'électricité (oui/non) oui, conforme

Energie

Label PEB (classe) B
PEB E-SPEC (kwh/m²/an) 139
Emission CO2 (émission CO2) 35
E total (Kwh/an) 32471
PEB code unique 20260129018514
PEB Min (kWh/m²/an) 139 kWh/m²/an
PEB Max (kWh/m²/an) 139 kWh/m²/an
PEB valide jusqu'au (datetime) 29/02/2036
Date du PEB (datetime) 29/01/2026
Prendre contact pour le bien : 7563459

* Champs obligatoires

Préférences pour les cookies

La protection de vos données personnelles est importante pour nous. C’est pourquoi nous détaillons ci-dessous les différents services et fonctionnalités du site qui utilisent des cookies et nous vous laissons décider des cookies que vous souhaitez autoriser ou refuser.

Veuillez cependant noter que si vous bloquez certains types de cookies, cela pourrait impacter votre expérience de navigation sur notre site ainsi que les fonctionnalités disponibles.

Nous utilisons des cookies fonctionnels obligatoires pour assurer le bon fonctionnement du site. Ils sont, par exemple, nécessaires pour retrouver le résultat d’une recherche ou enregistrer le choix de la langue.

Certaines fonctionnalités, comme l’affichage de vidéos ou de cartes géographiques, sont assurées via des composants externes développés par des partenaires comme YouTube ou Google. Certains composants utilisent des cookies qui sont susceptibles de permettre à ces tiers de suivre le comportement des internautes afin, par exemple, de réaliser du ciblage publicitaire. L’activation de ces fonctionnalités et des cookies associés est donc soumis à votre consentement.