Maison - à vendre - 4219 Wasseiges 225 000 €

Maison - à vendre - 4219 Wasseiges
4 1 200 m² 1 1 PEB : G

Description

L'immobilière de Marneffe vous propose cette spacieuse habitation 4 à 5 chambres, à rafraichir, à Wasseiges. Situation optimale dans le village d'Acosse, entre Eghezée, Hannut et Burdinne. Profitez de lumineuses pièces de vie, de belles chambres mais également d'un garage et d'un atelier. Les possibilités d'aménagement sont multiples.
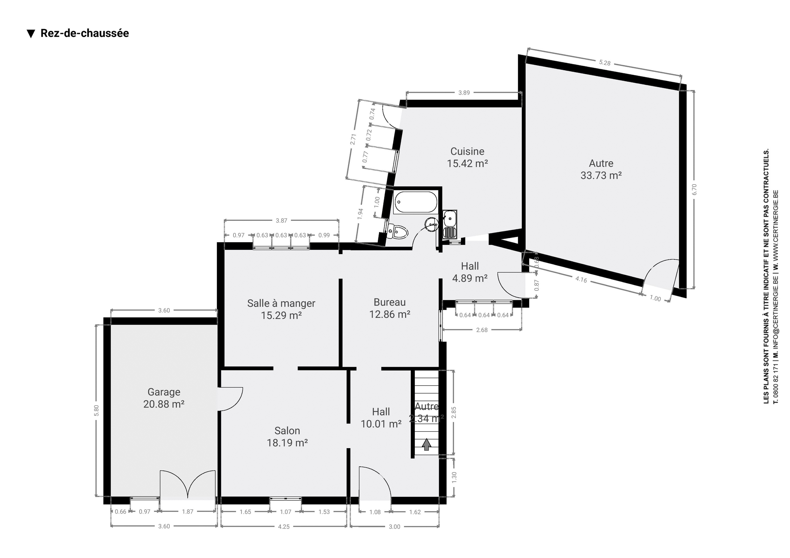
Composition au RDC : hall d'entrée, lumineux salon de 18m², salle à manger de 15m², bureau, cuisine de 15m², hall, salle de bain et garage.
1er : hall de nuit, 3 spacieuses chambres de 13, 16 et 18m² et bureau/dressing.
2e : beau grenier de 60m² permettant la création de chambres supplémentaires.
-1 : caves de 26m².
Extérieurs : agréable jardin exposé sud-ouest avec plusieurs coins cosy pour profiter de l'extérieur tout au long de la journée. Allée pour une voiture, garage et grande cour menant à l'atelier de 34m².
Equipements : châssis PVC DV avec volets (2 SV bois), 2 poêles à bois (pas de chauffage central), fosse septique.
Prévoir : remise en conformité de l'électricité et rafraîchissement global.
Libre à l'acte.
Charmante habitation au volume confortable, offrant diverses possibilités d'aménagement et idéalement située.
PEB G 648 kWh/m²/an - 20250710013937
Plans dispo sur notre site.
Infos au 019 770 500 ou via https://www.immodemarneffe.be/fr/bien/a-vendre/maison/4219-wasseiges/7323461

Adresse :

Rue de Burdinne 24 - 4219 Wasseiges

Documents

Général

Référence 7323461
Catégorie Maison
Meublé Non
Nombre de chambres 4
Nombre de salles de bain 1
Jardin Oui
Surface du jardin 300 m²
Garage Oui
Terrasse Oui
Parking Oui
Surface habitable 200 m²
Surface du terrain 657 m²
Disponibilité à l'acte

Bâtiment

Année de construction 1918
Nombre de garage 1
Parking intérieur Non
Parking extérieur Oui
Parking(s) extérieur (nombre) 1
Type de construction traditionnel

Nom, catégorie & situation

Nombre d'étages (numéro) 2

Equipement de base

Accès handicapés Non
Cuisine Oui
Chauffage (Format/energie) poêle à bois
Type de cuisine séparée

Spécificités terrain

Orientation du bâtiment (-) sud-ouest
Type d'environnement campagne
Exposition de la façade avant (-) nord-est
Orientation du jardin (-) sud ouest
Risque d'inondation 2023 (type innondation) Classe A (aucune chance)

En chiffres

Surface bâtie (surf. bât. princ.) 179
Nbre de cave(s) (nombre) 2
Nbre de toilette(s) (nombre) 1
Nombre de sdd 0
Chambre 1 (surface) 18 m²
Chambre 2 (surface) 16 m²
Chambre 3 (surface) 13 m²
Largeur de façade 14
Garage (surface) 21 m²
Nbre de terrasse(s) (nombre) 1
Salle de séjour (surface) 18 m²
Salle à manger (surface) 15 m²
Cuisine (surface) 15 m²
Dressing (surface) 6 m²
Salle de bain 1 (surface) 3 m²
Caves (surface) 26 m²
Grenier (surface) 62 m²
Bureau (surface) 13 m²
Hall d'entrée (surface) 10 m²
Atelier (surface) 34 m²
Orientation de la terrasse 1 (-) sud-ouest
Hall de nuit (surface) 4 m²

Divers

Nbre de grenier(s) (nombre) 1
Lave-vaisselle Oui
Téléphone Oui
Cave Oui
Télévision Oui
Four Oui
Hotte Oui

Equipement extérieur

Atelier Oui
Piscine Non
Cour Oui
Clôture Oui
Atelier (surface) 34 m²

Sécurité

Volets Oui

À proximité

Magasins (distance (m)) 6000
Écoles (distance (m)) 2200
Transports en commun (distance (m)) 100
Centre-ville (distance (m)) 6000
Magasins Oui
Ecoles Oui
Transports en commun Oui
Centre-ville Oui
Autoroute Oui
Autoroute (distance (m)) 5500
Crèche Oui
Crèche (distance) 2500

Charges & Rendement

Sous régime TVA Non
Loué Non

Domaine juridique

Servitude Non
Permis de bâtir Oui
Permis de lotir Non
Affectation urbanistique zone d'habitat rurale

Raccordements

Égouts Non
Électricité Oui
Eau Oui

Équipements techniques

Châssis (Ouvertures) pvc
Vitrage (type) double vitrage

Caractéristiques Principales

Surface de terrasse 1 15 m²

Cadastre

Revenu cadastral (€) (montant) 470 €

Certificats / Attestations

Certificat d'électricité (oui/non) oui, non conforme
Attestat. citerne (oui/non) non

Energie

Label PEB (Classe) G
PEB E-SPEC (kwh/m²/an) (Consommation énergétique) 648
Emission CO2 (Emission GES) 8
E total (Kwh/an) 152316
PEB code unique (-) 20250710013937
PEB Min (kWh/m²/an) (-) 648
PEB Max (kWh/m²/an) (-) 648
PEB valide jusqu'au (validité) 10/07/2035
Date du PEB 10/07/2025

Visites

Point de rendez-vous pour la visite en ligne (détails) rue de Burdinne 24 à Wasseiges
Prendre contact pour le bien : 7323461

* Champs obligatoires

Préférences pour les cookies

La protection de vos données personnelles est importante pour nous. C’est pourquoi nous détaillons ci-dessous les différents services et fonctionnalités du site qui utilisent des cookies et nous vous laissons décider des cookies que vous souhaitez autoriser ou refuser.

Veuillez cependant noter que si vous bloquez certains types de cookies, cela pourrait impacter votre expérience de navigation sur notre site ainsi que les fonctionnalités disponibles.

Nous utilisons des cookies fonctionnels obligatoires pour assurer le bon fonctionnement du site. Ils sont, par exemple, nécessaires pour retrouver le résultat d’une recherche ou enregistrer le choix de la langue.

Certaines fonctionnalités, comme l’affichage de vidéos ou de cartes géographiques, sont assurées via des composants externes développés par des partenaires comme YouTube ou Google. Certains composants utilisent des cookies qui sont susceptibles de permettre à ces tiers de suivre le comportement des internautes afin, par exemple, de réaliser du ciblage publicitaire. L’activation de ces fonctionnalités et des cookies associés est donc soumis à votre consentement.