Bureaux - à vendre - 4300 Waremme 105 000 €

Bureaux - à vendre - 4300 Waremme
52 m²

Description

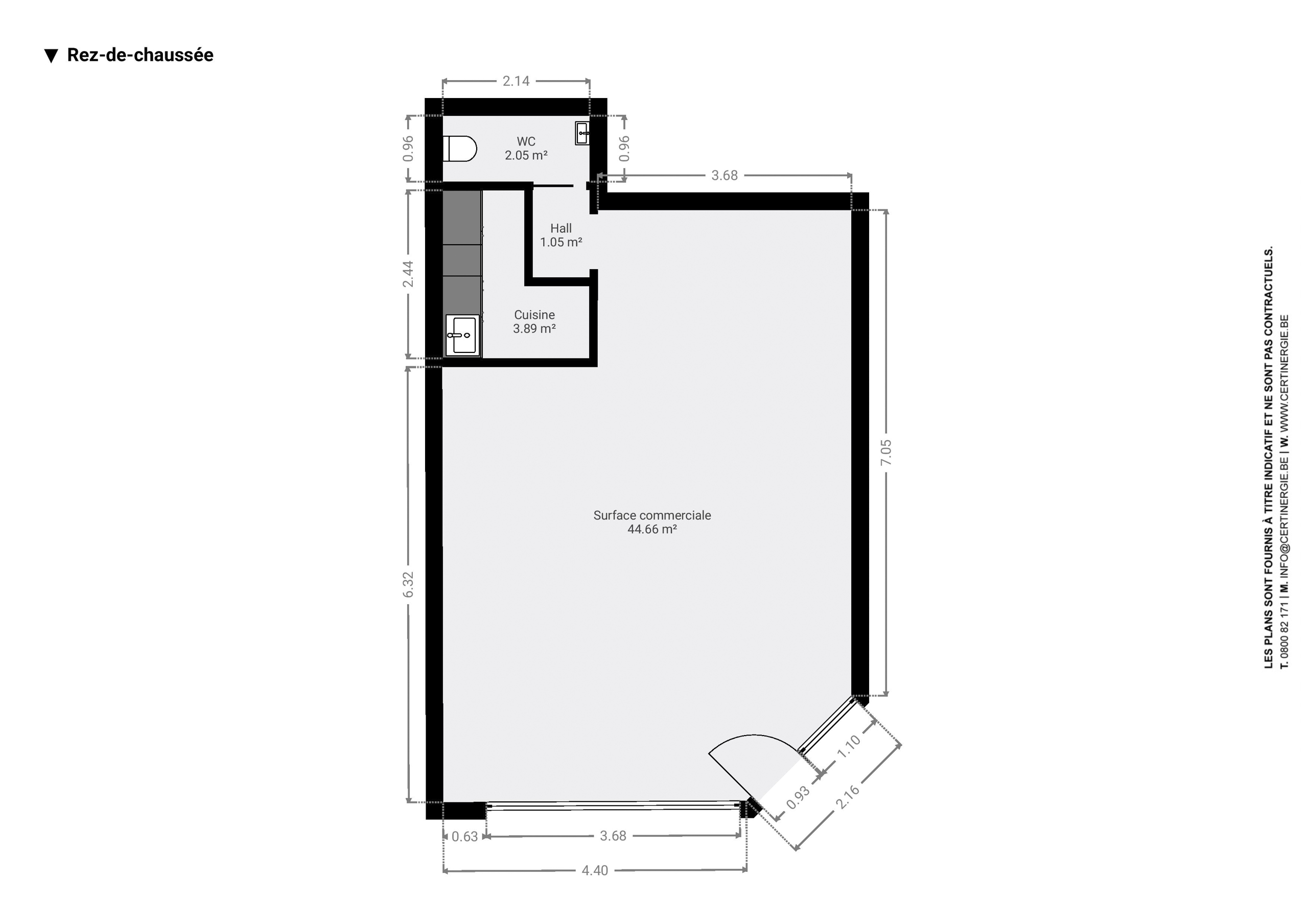
L'immobilière de MARNEFFE vous présente ce lumineux commerce/bureau d’une surface totale de 52m², rénové en 2018 et idéalement situé à 100m de la place de Waremme.
Le bien se compose d’une surface principale de 44m² avec 8m de vitrine dont 4m directement à rue, WC et kitchenette/remise de 4m².
Equipements : rénovation de 2018 (carrelage, électricité, mobilier), boiler électrique, châssis alu, chauffage central mazout (chaudière commune), alarme.
Le bien est libre à l’acte. charges de 250€/mois comprenant une provision pour le chauffage (en 2025 les propriétaires ont retouché 415€). Situation idéale dans l'hypercentre de Waremme avec une belle visibilité qui sera un énorme atout pour votre activité ! A visiter sans tarder ! Les éléments communiqués sont fournis avec le plus grand soin, sans toutefois présenter de caractère contractuel. La présente annonce ne constitue en aucun cas une offre au sens juridique du terme, mais vaut appel d’offres d’achat
Plus d'infos au 019/770.500 ou via https://www.immodemarneffe.be/fr/bien/a-vendre/bureau/4300-waremme/7649071

Adresse :

Rue de Huy 4 - 4300 Waremme

Documents

Général

Référence 7649071
Catégorie Bureaux
Meublé Oui
Garage Non
Parking Non
Surface habitable 52 m²
Surface du terrain 52 m²
Disponibilité à l'acte

Bâtiment

Année de construction 1971
Parking intérieur Non
Parking extérieur Non
Année de rénovation 2018

Nom, catégorie & situation

Etage 0
Nombre d'étages 4

Equipement de base

Accès handicapés Oui
Cuisine Oui
Chauffage (ind/coll) (type (ind/coll)) collectif
Nbre de toilette(s) (nombre) 1
Ascenseur Non
Chauffage (type) mazout (chauf. centr.)
Type de cuisine séparée

Spécificités terrain

Orientation du bâtiment (façade arrière) ouest
Type d'environnement centre ville
Risque d'inondation (type innondation) pas situé en zone inondable

En chiffres

Surface bâtie (surf. bât. princ.) 52
Bureau (surface) 45 m²

À proximité

Magasins (distance (m)) 150
Écoles (distance (m)) 250
Transports en commun (distance (m)) 150
Centre sportif (distance (m)) 750
Magasins Oui
Ecoles Oui
Transports en commun Oui
Centre sportif Oui
Autoroute Oui
Autoroute (distance (m)) 3000
Gare Oui
Gare (distance (m)) 500

Charges & Rendement

Sous régime TVA Non
Loué Non

Domaine juridique

Servitude Non
Jugement en cours Non
Permis de bâtir Non
Permis de lotir Non
Droit de préemption Non
Affectation urbanistique zone d'habitat
Intimation en justice Non

Raccordements

Égouts Oui
Électricité Oui
Eau Oui

Équipements techniques

Châssis (type) aluminium

Type de matériau & évaluation

Type de revêtement de sol carrelages

Cadastre

Revenu cadastral (€) (montant) 1363 €

Sécurité

Alarme Oui
Prendre contact pour le bien : 7649071

* Champs obligatoires

Préférences pour les cookies

La protection de vos données personnelles est importante pour nous. C’est pourquoi nous détaillons ci-dessous les différents services et fonctionnalités du site qui utilisent des cookies et nous vous laissons décider des cookies que vous souhaitez autoriser ou refuser.

Veuillez cependant noter que si vous bloquez certains types de cookies, cela pourrait impacter votre expérience de navigation sur notre site ainsi que les fonctionnalités disponibles.

Nous utilisons des cookies fonctionnels obligatoires pour assurer le bon fonctionnement du site. Ils sont, par exemple, nécessaires pour retrouver le résultat d’une recherche ou enregistrer le choix de la langue.

Certaines fonctionnalités, comme l’affichage de vidéos ou de cartes géographiques, sont assurées via des composants externes développés par des partenaires comme YouTube ou Google. Certains composants utilisent des cookies qui sont susceptibles de permettre à ces tiers de suivre le comportement des internautes afin, par exemple, de réaliser du ciblage publicitaire. L’activation de ces fonctionnalités et des cookies associés est donc soumis à votre consentement.